Raum 202

Nutzung

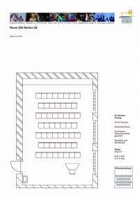
Der Raum kann für Seminare, Gruppentreffen, Vorträge und Workshops gebucht werden.

Kapazität
  • in Reihenbestuhlung für bis zu 50 Personen
  • in parlamentarischer Bestuhlung mit Tischen und Stühlen für bis zu 30 Personen ausgelegt.
Besonderheiten

In dem Raum befindet sich eine Wandtafel (Kreidetafel).

Equipment

Beamer, Flipchart, Pinnwand, Overheadprojektor, Moderationskoffer

Technische Ausstattung
anzeigen



Technische Ausstattung

Auf Anfrage

Auf Anfrage